Mmmm..... cookies...

Afdeling

Bakkedraget, Stenagergårdsvej, Helgesvej
185-0

Helgesvej 105A. Etage/dør: 1.
Bakkedraget 20, 22, 24, 26, 28, 30
Stenagergårdsvej 65, 75, 83, 97
Bakkedraget 54 B, 56 A
Bakkedraget 54 A, 56 B

Boliginfo

Adresser

Bakkedraget 2-56 A-B,
4160 Herlufmagle

Helgesvej 105 A-C, 107 A-B, 109 A-E, 111 A-B,
4160 Herlufmagle

Stenagergårdsvej 1 - 55,
4160 Herlufmagle

Boligtype

Antal boliger

15

Energimærke

D

Andet

Altan: Nej
Elevator: Nej
Husdyr tilladt: Ja

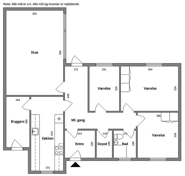
Værelser

4

Størrelser

91-105 m2

Husleje

8120-9288 kr.

Indskud

24661-27800 kr

Ventetid

1 år 6 mdr. - 3 år

Skriv dig op her!